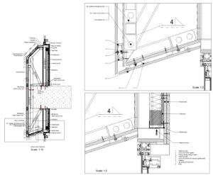
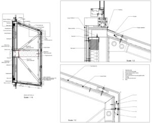
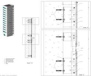
Bedizia Tower
15-Storey in Stasinou Avenue, Nicosia, Cyprus

Structural design of glass and steel substructure of the GRC

Client : MULTIPRO BUILDING CONTRACTORS

Architect :

X
Welcome to Calculus Engineering
Scroll to Top