Glow

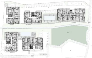
Discover a new standard of urban living in our modern gated community located in the heart of the city. Designed to offer both convenience and tranquility, this landmark development blends modern architecture with thoughtfully curated amenities, creating a vibrant and secure environment for families, professionals, and investors alike. Agios Athanasios, Limassol CYPRUS.

Client: BBF Development LTD

Architect :

X
Welcome to Calculus Engineering
Scroll to Top